top of page
Mod Nest
Professor Donna Firouzbakht - Architecture Computer Graphics
Summer 2021
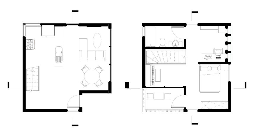
Mod Nest it is a wooden tiny house in the middle of the forest, away from the crowd and noise of the city. It sits on a green landscape, surrounded by colorful flowers. The Mod Nest has elongated and ribbon window openings that provide ample amount of natural light to the interior. The floor plan of the house has a fluid design. On the first floor, the kitchen and living room blend with each other. On the second floor, the staircase lands in front of the office space. The office space is separated from bedroom with a wall. The bedroom blends with the hobby corner by the balcony.
bottom of page








